




Table of Contents Page
2......... Project Information
2.3
Construction
Programme and Activities
2.5
Status
of Environmental Licences, Notification and Permits
3......... Environmental Monitoring Requirements
3.1
Construction
Dust Monitoring
3.2
Construction
Noise Monitoring
4......... Implementation Status of Environmental Mitigation Measures
5.1
Construction
Dust Monitoring
5.2
Regular
Construction Noise Monitoring
6......... ENVIRONMENTAL SITE INSPECTION AND AUDIT
7......... Environmental Non-conformance
7.1
Summary
of Monitoring Exceedances
7.2
Summary
of Environmental Non-Compliance
7.3
Summary
of Environmental Complaints
7.4
Summary
of Environmental Summon and Successful Prosecutions
8.1
Construction
Programme for the Next Three Months
8.2
Key
Issues for the Coming Month
8.3
Monitoring
Schedule for the Coming Month
9......... ConclusionS AND RECOMMENDATIONS
List of Tables
Table 2.1.......... Construction
Activities in the reporting month
Table 2.2.......... Contact
Information of Key Personnel
Table 2.3.......... Status of
Environmental Licenses, Notifications and Permits
Table 3.1 ........ Air Quality
Monitoring Equipment
Table 3.2 ........ Location of
Construction Dust Monitoring Station
Table 3.3 ........ Noise Monitoring
Parameters, Frequency and Duration
Table 3.4 ........ Noise Monitoring
Equipment for Regular Noise Monitoring
Table 3.5 ........ Noise Monitoring
Stations during Construction Phase
Table 3.6 ........ Noise Monitoring
Parameters, Frequency and Duration
Table 4.1.......... Status of Required
Submission under Environmental Permit
Table 5.1 ........ Summary of 24-hour
TSP Monitoring Result in the Reporting Period
Table 5.2 ........ Summary of 1-hour
TSP Monitoring Result in the Reporting Period
Table 5.3 ........ Summary of
Construction Noise Monitoring Results in the Reporting Period
Table 6.1 ........ Observations and
Recommendations of Site Audit
Table 8.1.......... Construction
Activities in the coming three months
List of Figures
|
Site Layout Plan |
|
|
Location of Air Quality Monitoring Station |
|
|
Locations of Noise Monitoring Station |
List of Appendices
|
Construction Programme |
|
|
Project Organization Structure |
|
|
Implementation Schedule of Environmental Mitigation Measures |
|
|
Summary of Action and Limit Levels |
|
|
Calibration Certificates of Equipment |
|
|
EM&A Monitoring Schedules |
|
|
Air Quality Monitoring Results and their Graphical Presentations |
|
|
Noise Monitoring Results and their Graphical Presentations |
|
|
Event and Action Plan |
|
|
Cumulative Statistics on Complaints, Notification of Summons and Successful Prosecutions |
|
|
Monthly Summary Waste Flow Table |
Central Kowloon Route – Kai Tak West (CKR-KTW; Contract No. HY/2014/07) (hereafter called “the Project”) covers part of the construction of the Central Kowloon Route (CKR).
The Project comprises the follow works:
·
50x30m access shaft with noise enclosure at Ma Tau Kok (MTK);
·
100m long cut-and-cover (C&C) tunnel at MTK;
·
Demolition and re-provisioning of MTK Public Pier;
·
160m long underwater tunnel (UWT) (Stage 1);
·
210m long UWT (Stage 2);
·
60m long C&C tunnel at Kai Tak;
·
130m long depressed road and 200m long underpass at Kai Tak;
·
390m long underground tunnel ventilation audit at Kai Tak;
·
Seawall demolition and construction of new landing steps; and
·
Barging Point enclosure and conveyor system.
The EM&A
programme commenced on 4 April 2018.The impact EM&A for the Project
includes air quality and noise monitoring.
This is the 88th
monthly EM&A Report presenting the EM&A works carried out during the
period between 1 and 31 July 2025. As informed by the Contractor, major
activities in the reporting period were:
|
Locations |
Site Activities |
|
Kai Tak |
- Defect rectification works at underpass, depressed
road and C&C |
|
Ma Tau Kok |
- TTM
implementation; |
|
Kowloon Bay |
- Road paving at Stage 2 UWT; |
Breaches of Action and Limit Levels for Air Quality
All 24-hour TSP result was
below the Action and Limit Levels at all monitoring locations in the reporting
month.
All 1-hour TSP result was
below the Action and Limit Levels at all monitoring locations in the reporting
month.
Breaches of Action and Limit Levels for Noise
Regular Noise
Monitoring
One (1) action level
exceedance was recorded regarding to complaint on
noise nuisance received in the reporting month. No limit level exceedance was
recorded at all monitoring stations in the reporting month.
Complaint, Notification of Summons and Successful
Prosecution
One (1) complaint was received in the reporting
month (July 2025). The complaint was investigated and investigation report was provided in this reporting month
(July 2025).
Reporting Changes
No report changes in the
reporting period.
Future Key Issues
Key issues to be considered in the next two months included:
|
Locations |
Site Activities |
|
Kai Tak |
- Defect rectification works at underpass, depressed
road and C&C |
|
Ma Tau Kok |
- TTM implementation; |
|
Kowloon Bay |
- Asphalt paving at Stage 2 UWT; |
·
Section 1: Introduction
·
Section 2: Project Information
·
Section 3: Environmental Monitoring Requirement
·
Section 4: Implementation Status of Environmental Mitigation Measures
·
Section 5: Monitoring Results
·
Section 6: Environmental Site Inspection and Audit
·
Section 7: Environmental Non-conformance
·
Section 8: Future Key Issues
· Section 9: Conclusions and Recommendations
(a) construction of approximately 160m long cut-and-cover tunnel and 370m long underwater tunnel between the tunnel section at Ma Tau Kok and the depressed road of the CKR within Kai Tak Development;
(b) reconstruction of the seawall at Ma Tau Kok public pier, and the sloping seawall at the Former Kai Tak Airport Runway;
(c) construction of approximately 125m long depressed road and 200m long underpass of the CKR within Kai Tak Development;
(d) construction of approximately 360m long underground tunnel ventilation adit of the CKR;
(e) reconstruction of Kowloon City Ferry Pier Public Transport Interchange; and
(f) other associated works.
Table 2.1
Construction Activities in the reporting month
|
Locations |
Site Activities |
|
Kai Tak |
- Defect rectification works at underpass, depressed
road and C&C |
|
Ma Tau Kok |
- TTM implementation; |
|
Kowloon Bay |
- Road paving at Stage 2 UWT; |
Table 2.2
Contact Information of Key Personnel
|
Party |
Role |
Position |
Name |
Telephone |
Fax |
|
Arup-Mott MacDonald Joint Venture |
Residential Engineer (ER) |
Engineer’s Representative |
Mr. Patrick Lo |
36195901 |
2268 3954 |
|
ERM |
Independent Environmental Checker (IEC) |
Independent Environmental Checker |
Ms. Mandy To |
2271 3113 |
3015 8052 |
|
Gammon |
Contractor |
Contracts Manager |
Mr. Kin Fai Tam |
2516 8823 |
2516 6260 |
|
Environmental Manager |
Ms. Michelle Tang |
9267 8866 |
2516 6260 |
||
|
AECOM |
Contractor’s Environmental Team (ET) |
ET Leader |
Mr. Y. W. Fung |
3856 5681 |
2317 7609 |
Table 2.3
Status of Environmental Licenses, Notifications and Permits
|
Permit / License No. / Notification/ Reference No. |
Valid Period |
Status |
Remarks |
|
|
From |
To |
|||
|
Further Environmental Permit |
||||
|
FEP-01/457/2013/C |
28 Feb 2018 |
End of Project |
Valid |
-- |
|
Wastewater Discharge License |
||||
|
WT00043692-2023 |
1 Apr 2023 |
31 Mar 2028 |
Valid |
Ma Tau Kok |
|
WT00043881-2023 |
30 Jun 2023 |
30 Jun 2028 |
Valid |
Underwater Tunnel Stage 2 |
|
WT00044013-2023 |
7 May 2025 |
30 Apr 2028 |
Valid |
Kai Tak and Underwater Tunnel Stage 1 |
|
Construction Noise Permit |
||||
|
GW-RE0157-25 |
7 Mar 2025 |
6 Sep 2025 |
Valid |
General Works at Ma Tau Kok |
|
GW-RE0631-25 |
15 Jun 2025 |
14 Dec 2025 |
Valid |
General Works at Kai Tak |
|
GW-RE0418-25 |
30 Apr 2025 |
29 Oct 2025 |
Valid |
General Works at Stage 1 Underwater Tunnel |
|
GW-RE0581-25 |
7 Jun 2025 |
6 Nov 2025 |
Valid |
General Works at Stage 2 Underwater Tunnel |
|
GW-RE0233-25 |
19 Mar 2025 |
18 Sep 2025 |
Valid |
Kai Tak Access Road |
|
Chemical Waste Producer Registration |
||||
|
5118-247-G2347-47 |
30 Jan 2018 |
End of Project |
Valid |
-- |
|
5118-247-G2347-48 |
30 Jan 2018 |
End of Project |
Valid |
-- |
|
Marine Dumping Permit |
||||
|
-- |
-- |
-- |
-- |
-- |
|
Billing Account for Construction Waste Disposal |
||||
|
7029909 |
22 Jan 2018 |
End of Project |
Account Active |
-- |
|
Notification Under Air Pollution Control (Construction Dust) Regulation |
||||
|
429442 |
5 Jan 2018 |
End of Project |
Notified |
-- |
|
|
||||
Monitoring Requirements
Monitoring Equipment
Table 3.1
Air Quality Monitoring Equipment
|
Tisch Total Suspended Particulate Mass Flow
Controlled High Volume Air Sampler |
|
|
Calibration Kit (24-hour TSP) |
TISCH Environmental Orifice |
|
Portable direct reading dust meter |
Sibata Digital Dust Monitor |
Monitoring Locations
Table 3.2
Location of Construction Dust
Monitoring Station
|
Location |
Monitoring Station |
Description |
|
E-A14a [1] |
Block B of Merit Industrial Centre |
Rooftop (13/F) |
[1] The air monitoring station proposed in the EM&A Manual (i.e.
Wyler Gardens with ID: E-A14) was not available for impact dust monitoring,
therefore impact monitoring was conducted at E-A14a as an alternative which was
agreed by the ER, IEC and EPD.
Monitoring Methodology
(a) The HVS was installed in the vicinity of the air sensitive receivers. The following criteria were considered in the installation of the HVS as far as practicable: -
(i) A horizontal platform with appropriate support to secure the sampler against gusty wind was provided.
(ii) Two samplers should not be placed less than 2m apart from each other;
(iii) The distance between the HVS and any obstacles, such as buildings, was at least twice the height that the obstacle protrudes above the HVS.
(iv) A minimum of 2 meters separation from walls, parapets and penthouse for rooftop sampler.
(v) A minimum of 2 meters separation from any supporting structure, measured horizontally is required.
(vi) No furnace or incinerator flues nearby.
(vii) Airflow around the sampler was unrestricted.
(viii) The sampler was located more than 20 meters from any dripline.
(ix) Any wire fence and gate, required to protect the sampler, did not obstruct the monitoring process.
(x) Permission was obtained to set up the samplers and access to the monitoring station.
(xi) A secured supply of electricity was obtained to operate the sampler.
(b) Preparation of Filter Papers
(i) Glass fibre filters, G810 were labelled and sufficient filters that were clean and without pinholes were selected.
(ii) All filters were equilibrated in the conditioning environment for 24 hours before weighing. The conditioning environment temperature was around 25 °C and not variable by more than ±3 °C; the relative humidity (RH) was < 50% and not variable by more than ±5%. A convenient working RH was 40%.
(iii) All filter papers were prepared and analysed by ALS Technichem (HK) Pty Ltd., which is a HOKLAS accredited laboratory and has comprehensive quality assurance and quality control programmes.
(c) Field Monitoring
(i) The power supply was checked to ensure the HVS works properly.
(ii) The filter holder and the area surrounding the filter were cleaned.
(iii) The filter holder was removed by loosening the four bolts and a new filter, with stamped number upward, on a supporting screen was aligned carefully.
(iv) The filter was properly aligned on the screen so that the gasket formed an airtight seal on the outer edges of the filter.
(v) The swing bolts were fastened to hold the filter holder down to the frame. The pressure applied was sufficient to avoid air leakage at the edges.
(vi) Then the shelter lid was closed and was secured with the aluminium strip.
(vii) The HVS was warmed-up for about 5 minutes to establish run-temperature conditions.
(viii) A new flow rate record sheet was set into the flow recorder.
(ix) On site temperature and atmospheric pressure readings were taken and the flow rate of the HVS was checked and adjusted at around 1.3 m3/min, and complied with the range specified in the EM&A Manual (i.e. 0.6-1.7 m3/min).
(x) The programmable digital timer was set for a sampling period of 24 hrs, and the starting time, weather condition and the filter number were recorded.
(xi) The initial elapsed time was recorded.
(xii) At the end of sampling, on site temperature and atmospheric pressure readings were taken and the final flow rate of the HVS was checked and recorded.
(xiii) The final elapsed time was recorded.
(xiv) The sampled filter was removed carefully and folded in half length so that only surfaces with collected particulate matter were in contact.
(xv) It was then placed in a clean envelope and sealed.
(xvi) All monitoring information was recorded on a standard data sheet.
(xvii) Filters were then sent to ALS Technichem (HK) Pty Ltd. for analysis.
(d) Maintenance and Calibration
(i) The HVS and its accessories were maintained in good working condition, such as replacing motor brushes routinely and checking electrical wiring to ensure a continuous power supply.
(ii) HVSs were calibrated using TE-5025A Calibration Kit upon installation and thereafter at bi-monthly intervals.
(iii) Calibration certificate of the TE-5025A Calibration Kit and the HVSs are provided in Appendix E.
(a) Measuring Procedures
The measuring procedures of the 1-hour dust meter are in accordance with the Manufacturer’s Instruction Manual as follows:
(i) Turn the power on.
(ii) Close the air collecting opening cover.
(iii) Push the “TIME SETTING” switch to [BG]
(iv) Push “START/STOP” switch to perform background measurement for 6 seconds.
(v) Turn the knob at SENSI ADJ position to insert the light scattering plate.
(vi) Leave the equipment for 1 minute upon “SPAN CHECK” is indicated in the display.
(vii) Push “START/STOP” switch to perform automatic sensitivity adjustment. This measurement takes 1 minute.
(viii) Pull out the knob and return it to MEASURE position.
(ix) Push the “TIME SETTING” switch the time set in the display to 3 hours.
(x) Lower down the air collection opening cover.
(xi) Push “START/STOP” switch to start measurement.
(b) Maintenance and Calibration
(i) The 1-hour TSP meter was calibrated at 1-year intervals against a High Volume Samplers. Calibration certificates of the Laser Dust Monitors are provided in Appendix E.
Monitoring Schedule for the Reporting Month
Monitoring Requirements
Table 3.3
Noise Monitoring Parameters,
Frequency and Duration
|
Parameter and Duration |
Frequency |
|
30-mins measurement at each monitoring station between 0700 and 1900 on normal weekdays. Leq, L10 and L90 would be recorded. |
At least once per week |
Table 3.4
Noise Monitoring Equipment for
Regular Noise Monitoring
|
B&K (Model No. 2250, 2250L& 2270) Nti (Model No. XL2) |
|
|
Acoustic Calibrator |
MVI (Model No. CAL21) Rion (Model No. NC-74) B&K (Model No. 4231) |
Monitoring Locations
Table 3.5
Noise Monitoring Stations during
Construction Phase
|
Location |
Monitoring Station |
Description |
Measurement |
|
E-N12a [1] |
19 Hing Yan Street |
Rooftop (9/F) |
Façade |
|
E-N21a [1] |
Block B of Merit Industrial Centre |
Rooftop (13/F) |
Free field[2] |
Notes:
[1] The noise
monitoring stations proposed in the EM&A Manual (i.e. Grand Waterfront
Tower 3 with ID: E-N12 and Hang Chien Court Block J with ID: E-N21) were not
available for impact noise monitoring, therefore impact monitoring was
conducted at E-N12a and E-N21a as an alternative which was agreed by the ER, IEC and EPD.
[2] A correction of +3 dB(A) was made to the free field
measurements.
Monitoring Parameters, Frequency and Duration
Table 3.6
Noise Monitoring Parameters,
Frequency and Duration
|
Location |
Parameter and Duration |
Frequency |
|
E-N12a and E-N21a |
30-mins measurement at each monitoring station between 0700 and 1900 on normal weekdays. Leq, L10 and L90 would be recorded. |
At least once per week |
Monitoring Methodology
(a) The sound level meter was set on a tripod at a height of 1.2 m above the ground.
(b) Façade measurement was made at E-N12a.
(c) Free field measurements was made at monitoring location E-N21a. A correction of +3 dB(A) shall be made to the free field measurements.
(d) The battery condition was checked to ensure the correct functioning of the meter.
(e) Parameters such as frequency weighting, the time weighting and the measurement time were set as follows:
(i) frequency weighting
(ii) time weighting: Fast
(iii) time measurement: Leq(30-minutes) during non-restricted hours i.e. 0700 – 1900 on normal weekdays.
(f) Prior to and after each noise measurement, the meter was calibrated using the acoustic calibrator for 94 dB(A) at 1000 Hz. If the difference in the calibration level before and after measurement was more than 1 dB(A), the measurement would be considered invalid and repeat of noise measurement would be required after re-calibration or repair of the equipment.
(g) During the monitoring period, the Leq, L10 and L90 were recorded. In addition, site conditions and noise sources were recorded on a standard record sheet.
(h) Noise measurement was paused during periods of high intrusive noise (e.g. dog barking, helicopter noise) if possible. Observations were recorded when intrusive noise was unavoidable.
(i) Noise monitoring was cancelled in the presence of fog, rain, wind with a steady speed exceeding 5m/s, or wind with gusts exceeding 10m/s.
(a) The microphone head of the sound level meter was cleaned with soft cloth at regular intervals.
(b) The meter and calibrator were sent to the supplier or HOKLAS laboratory to check and calibrate at yearly intervals.
(c) Calibration certificates of the sound level meters and acoustic calibrators are provided in Appendix E.
Monitoring Schedule for the Reporting Month
Table 4.1
Status of Required Submission under Environmental Permit
|
EP Condition |
Submission |
Submission Date |
|
Condition
3.4 of |
Monthly EM&A Report for June 2025 |
14 July 2025 |
Table 5.1
Summary of 24-hour TSP Monitoring
Result in the Reporting Period
|
ID |
Average (mg/m3) |
Range (mg/m3) |
Action Level (mg/m3) |
Limit Level (mg/m3) |
|
E-A14a |
34.0 |
24.4 - 42.9 |
197.3 |
260 |
Table 5.2
Summary of 1-hour TSP Monitoring Result
in the Reporting Period
|
ID |
Average (mg/m3) |
Range (mg/m3) |
Action Level (mg/m3) |
Limit Level (mg/m3) |
|
E-A14a |
60.7 |
55.2 – 68.4 |
302.4 |
500 |
Table 5.3
Summary of Construction Noise
Monitoring Results in the Reporting Period
|
ID |
Range, dB(A), Leq (30 mins) |
Limit Level, dB(A), Leq (30 mins) |
|
E-N12a |
63.3 – 67.1 |
75 |
|
E-N21a |
58.0 – 58.8 |
75 |
Table 6.1
Observations and Recommendations of
Site Audit
|
Parameters |
Date |
Observations and Recommendations |
Follow-up |
|
Air Quality |
30 July 2025 |
Reminder: The contractor was reminded
to display the NRMM label on the road roller at MTK. |
The item was rectified by the Contractor on 31 July 2025. |
|
Noise |
Nil |
Nil |
Nil |
|
Water Quality |
Nil |
Nil |
Nil |
|
Waste/ Chemical Management |
16 July 2025 |
Reminder: The contractor was
reminded to cover the breaker head for preventing hydralic
oil leakage at MTK site. |
The item was rectified by the Contractor on 23 July 2025. |
|
Reminder: The contractor was reminded to remove the oil stain
within silt curtain at stage 2 marine platform. |
The item was rectified by the Contractor on 31 July 2025. |
||
|
Landscape & Visual |
Nil |
Nil |
Nil |
|
Permits/ Licenses |
Nil |
Nil |
Nil |
*The item was under rectification on last reporting month.
Table 8.1
Construction Activities in the coming three months
|
Locations |
Site Activities |
|
Kai Tak |
- Defect rectification works at underpass, depressed
road and C&C |
|
Ma Tau Kok |
- TTM implementation; |
|
Kowloon Bay |
- Asphalt paving at Stage 2 UWT; |


Document control record
Document prepared by:
Unit 1608, 16/F, Tower B,
Manulife Financial Centre
223 -231 Wai Yip Street,
Kwun Tong, Kowloon, Hong Kong.
|
T |
3664 6888 |
A person
using
a)
Using the documents or data
in electronic form without requesting and checking them for accuracy
b) Using the
documents or data for any purpose not agreed to in writing by
c) against
the original hard copy version.
|
Document control |
|
|||||
|
Report title |
Monthly Environmental
Monitoring and Audit – Kai Tak Phase 2B Landscaped Deck – Report No. 9
(Period from 1st to 31st July 2025) |
|||||
|
Document code |
|
Project number |
P528199 |
|||
|
File path |
|
|||||
|
Client |
|
|||||
|
Client contact |
|
Client reference |
|
|||
|
Rev |
Date |
Revision details/status |
Author |
Reviewer |
Verifier |
Approver |
|
0 |
|
First issue |
Kisten Ma |
F.C. Tsang |
|
F.C. Tsang |
|
|
|
|
|
|
|
|
|
|
|
|
|
|
|
|
|
|
|
|
|
|
|
|
|
Current revision |
|
|||||
|
Approval |
|||
|
Author
signature |
|
Approver
signature |
|
|
Name |
Kisten Ma |
Name |
F.C. Tsang |
|
Title |
Senior Consultant |
Title |
Environmental Team Leader |
3 Air Quality and Noise Monitoring
6 Summary of Complaints, Notification of
Summons and Prosecutions
9 Conclusion and Recommendations
Appendices
Appendix A Alignment and Works Site in Kai Tak
West Area for Contract No. HY/2023/08
Appendix B Construction
Programme
Appendix C Project Organization Chart
Appendix D Event and Action Plan (EAP) (Air Quality Monitoring)
Appendix E Event
and Action Plan (EAP) (Noise Monitoring)
Appendix F Environmental
Mitigation Implementation Schedule (EMIS)
Appendix G Waste
Flow Table
Appendix H Statistics
on Complaint, Notifications of Summons and Successful Prosecutions
1.1.1
Build King -
Tung Lee Joint Venture (“Contractor”) commenced the construction works of
Highway Department (HyD) Central Kowloon Route Contract No. HY/2023/08 –
Central Kowloon Route – Remaining Works at Kai Tak West Area (“The Project”) on
11 November 2024. This is the 9th monthly
Environmental Monitoring and Audit (EM&A) report presenting the EM&A
works carried out in the Kai Tak West Area during the period from 1 July 2025 to 31 July 2025.
1.1.2
A summary of
major construction activities informed by the Contractor for the Project during
the reporting period is presented below.
|
Construction
Activities Undertaken in Kai Tak West Area |
|
·
Planter wall construction
at Kai Tak Phase 2B Landscaped Deck ·
Backfilling, drainage
layer and waterproofing works at Kai Tak Phase 2B Landscaped Deck ·
Construction of staircase
ST-01 at Kai Tak Phase 2B Landscaped Deck ·
Ramp construction at Kai
Tak Phase 2B Landscaped Deck |
Environmental
Monitoring and Audit Works
1.1.3
Regular construction air quality monitoring
(24-hour TSP and 1-hour TSP) and noise monitoring works in Kai Tak West Area
are currently covered under the Contract No. HY/2014/07 – Central Kowloon Route
– Kai Tak West. The details of the
monitoring works could be referred to Sections 3 and 5 of the corresponding
Monthly EM&A Report for Contract No. HY/2014/07.
1.1.4
Joint weekly site inspections were conducted
by representatives of the Environmental team (ET), the Contractor and the
Engineer on 4, 11, 18 and 25 July 2025. A joint
site inspection with the Independent Environmental Checker (IEC) was undertaken
on 11
July 2025. Bi-weekly
inspection of the implementation of landscape and visual mitigation measures
was conducted by the ET on 11 and 25 July 2025. Details of
the audit findings and implementation status are presented in Section 7. Details of waste management are presented in Section
4.
1.1.5
A summary of the non-compliance (exceedance)
during the reporting period is provided below.
-
No Action / Limit Level
exceedance for 1-hour TSP was recorded.
-
No Action / Limit Level
exceedance for 24-hour TSP was recorded.
-
No Action / Limit Level
exceedance for construction noise was recorded.
Complaints,
Notification of Summons and Successful Prosecution
1.1.6
No environmental related complaints,
notification of summons and successful prosecution were received in the
reporting period.
Reporting
Changes
1.1.7
There were no reporting changes during the
reporting period.
Future
Key Issues
1.1.8
A summary of construction activities informed
by the Contractor for the next reporting period are listed below:
|
Construction Activities To be Undertaken in
Kai Tak West Area |
|
·
Planter wall construction
at Kai Tak Phase 2B Landscaped Deck ·
Backfilling works (soil
and aggregate) at Kai Tak Phase 2B Landscaped Deck ·
Laying of planting soil
at Kai Tak Phase 2B Landscaped Deck ·
Ramp construction at Kai
Tak Phase 2B Landscaped Deck |
1.1.1
Central Kowloon Route (CKR) is a 4.7 km long
dual 3-lane trunk road in Central Kowloon linking Yau Ma Tei Interchange in
West Kowloon with the road network on Kai Tak Development and Kowloon Bay in
East Kowloon.
1.1.2
The Central Kowloon Route – Design and
Construction Environmental Impact Assessment Report (Register No.:
AEIAR-171/2013) was approved with conditions by the Environmental Protection
Department (EPD) on 11 July 2013. An Environmental Permit (EP-457/2013) was
issued on 9 August 2013. Variations of EP (VEP) was subsequently
applied for and the latest EP (EP-457/2013/D) was issued by EPD on 15 June
2021.
1.1.3
The construction of the CKR had been divided
into different sections. Contract No.
HY/2023/08 – Central Kowloon Route – Remaining Works covers part of the
construction activities located at Kai Tak West Area and Yau Ma Tei Area under
the EP, including:
1.1.4
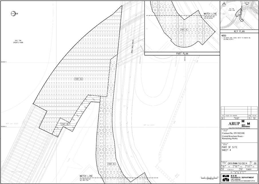
The works site at Kai Tak West Area for the
Contract No. HY/2023/08 are shown in Appendix A.
1.2
Purpose of
the Report
1.2.1
This is the 9th
monthly Environmental Monitoring and Audit (EM&A) report presenting the
EM&A works carried out for the Project in the Kai Tak West Area during the
period from 1 July 2025 to 31 July 2025.
1.3
Construction
Activities Undertaken During the Reporting Period
1.3.1
A summary of major construction activities carried
out during the reporting period are presented in Table 1.1. The construction programme is presented in Appendix
B.
Table 1.1 Summary of Construction Activities during
the Reporting Period
|
Construction Activities Undertaken in Kai
Tak West Area |
Progress |
|
·
Planter
Wall construction at Kai Tak Phase 2B Landscaped Deck |
90% |
|
·
Backfilling,
drainage layer and waterproofing works at Kai Tak Phase 2B Landscaped Deck |
60% |
|
·
Construction
of staircase ST-01 at Kai Tak Phase 2B Landscaped Deck |
100% |
|
·
Ramp
construction at Kai Tak Phase 2B Landscaped Deck |
37% |
1.4
Project
Organisation
1.4.1
The project organization structure is shown
in Appendix C. The key personnel contact names and numbers for the
Project are summarized in Table 1.2.
Table 1.2 Contact Information of Key Personnel
|
Party |
Role |
Position |
Name |
Contact No. |
|
Arup – Mott MacDonald Joint Venture |
Engineer’s Representative (“ER”) |
Resident Engineer (Environmental) |
Ms. Jim Li |
9120 1157 |
|
ERM – Hong Kong Limited |
Independent Environmental Checker (“IEC”) |
IEC |
Ms. Mandy To |
2271 3313 |
|
Aurecon Hong Kong Limited |
Environmental Team (“ET”) |
ET Leader |
Mr. F. C. Tsang |
3664 6801 |
|
Build King – Tung Lee Joint Venture |
Contractor |
Environmental Officer |
Mr. Samuel Pang |
9876 9121 |
1.5
Status of Environmental Licences,
Notification and Permit
1.5.1
A summary of the valid permits, licences,
and/ or notifications on environmental protection for this Project is presented
in Table 1.3.
Table 1.3 Summary of the Environmental Licence,
Notification, Permit and Documentations
|
Permit/
License/ Notification / Reference No. |
Valid Period |
Status |
Remark |
|
|
From |
To |
|
|
|
|
Environmental Permit |
||||
|
EP-457/2013/D |
15 June 2021 |
-- |
Valid |
-- |
|
Wastewater Discharge License |
||||
|
WT00046473-2025 |
9 May 2025 |
End of Project |
Valid |
-- |
|
Notification of Construction Works Under the Air Pollution Control
(Construction Dust Regulation) |
||||
|
10007346 |
25 July 2024 |
End of Project |
Notified |
-- |
|
Chemical Waste Producer Registration |
||||
|
5213-286-B2767-02 |
19 March 2025 |
-- |
Valid |
-- |
|
Billing Account for Disposal of Construction Waste |
||||
|
7051793 |
6 August 2024 |
-- |
Valid |
-- |
|
Y-Park Membership |
||||
|
C0280 |
12 August 2024 |
-- |
Valid |
-- |
|
Construction Noise Permit |
||||
|
GW-RE0080-25 |
3 February 2025 |
31 July 2025 |
Valid |
General Activities at Kai Tak Phase 2B Landscaped Deck |
|
Collection of Public Fill at Public Fill Reception Facility |
||||
|
TKO137-HY/2023/08-02 |
1 July 2025 |
31 December 2025 |
Valid |
-- |
2.1
Environmental
Permit (EP) Submission Status
2.2
Environmental permit (EP) conditions under
the EIAO, submission status under the EP and implementation status of
mitigation measures had been reviewed and implemented on schedule. The status of required submissions under the
EP (EP-457/2013/D) during the reporting period for the Project are summarised
in Table 2.1.
Table 2.1 Summary of Status of Required Submission for
EP-457/2013/D for the Project
|
EP Condition |
Submission |
Submission Date |
|
3.4 |
Monthly EM&A Report –
Kai Tak Phase 2B Landscape Deck (June 2025) |
14 July 2025 |
3
Air Quality and
Noise Monitoring
3.1
Air Quality
Monitoring Requirements and
Results
3.1.1
The air quality (24-hour TSP, 1-hour TSP)
monitoring works in Kai Tak West Area are currently covered under Contract No.
HY/2014/07 – Central Kowloon Route – Kai Tak West. Details of the corresponding monitoring parameters,
equipment, methodology, monitoring schedule wind data, results and the
established Action and Limit Levels could be referred to Sections 3 and 5 of
the corresponding Monthly EM&A Report for Contract No. HY/2014/07.
Observations
3.1.2
No Action/ Limit Level exceedance was
recorded for all 1-hour TSP and 24-hour TSP monitoring in the reporting period.
3.1.3
Site audits were carried out on a weekly
basis to monitor and audit the timely implementation of air quality mitigation
measures within the site boundaries of this Project. A summary of observation during the site audits
is shown in Table 7.1 of
this report.
3.2
Noise
Monitoring Requirements and Results
3.2.1
The construction noise monitoring works in
Kai Tak West Area are currently covered under Contract No. HY/2014/07 – Central
Kowloon Route – Kai Tak West. Details of
the corresponding monitoring parameters, equipment, methodology, results and
the established Action and Limit Levels could be referred to Sections 3 and 5
of the corresponding Monthly EM&A Report for Contract No. HY/2014/07.
Observations
3.2.2
No Action/ Limit Level exceedance was recorded
for construction noise monitoring in the reporting period.
3.2.3
Site audits were carried out on a weekly
basis to monitor and audit the timely implementation of noise mitigation
measures within the site boundaries of this Project. A summary of observations during the site
audits is shown in Table 7.1 of
this report.
4
Waste Management
4.1.1
Waste generated from this Project includes
inert C&D materials and non-inert C&D materials. Non-inert C&D
materials are made up of general refuse, vegetative wastes and recyclable
wastes such as plastics and paper/ cardboard packaging waste. Steel materials generated from the project
are also grouped into non-inert C&D materials as the materials were not
disposed of with other inert C&D materials.
As advised by the Contractor, no
inert C&D materials, non-inert C&D materials, nor chemical waste was generated and disposed
of during this reporting period.
4.1.2
With reference to relevant handling records
and trip tickets of this Project, the quantities of different types of waste
generated in the reporting period are summarised in Table 4.1. Details of cumulative waste management data
are presented as a waste flow table in Appendix G.
Table 4.1 Quantities of Waste Generated
from the Project in the Reporting Period
|
Reporting period |
Quantity |
|||||
|
Inert
C&D Materials (in ‘000
kg) |
Chemical
Waste (in ‘kg) |
Non-inert
C&D Materials |
||||
|
Others, e.g. General Refuse disposed of at
Landfill (in ‘000kg) |
Recycled
materials |
|||||
|
Paper/ cardboard (in ‘000kg) |
Plastics (in ‘000
kg) |
Metals (in ‘000
kg) |
||||
|
July 2025 |
0.00 |
0.00 |
0.00 |
0.00 |
0.00 |
0.00 |
5.1.1
As per the EM&A Manuals, the landscape
and visual mitigation measures shall be implemented, and site inspections
should be undertaken once every two weeks during the construction period.
5.1.2
Bi-weekly inspection of the implementation of
landscape and visual mitigation measures was conducted on 11 and
25 July 2025. The observations and recommendations made during
the site inspections are presented in Table 7.1. A summary of the implementation status is
presented in Appendix F.
6
Summary of
Complaints, Notification of Summons and Prosecutions
6.1.1
The environmental Complaints Handling Procedures
is shown below.
|
Complaint Received via Project Hotline |
Complaint
Received via 1823 or from other government departments |
||||
|
|
|
|
|
||
|
Contractor notify ER, ET and IEC |
ER notify Contractor, ET and IEC |
||||
|
|
|
|
|
||
|
Contractor log complaint and date of receipt onto
the complaint database. Contractor, ER and ET
to conduct investigation of complaint |
|||||
|
|
|
|
|
||
|
If complaint is considered not valid |
If complaint is found valid |
||||
|
|
|
|
|
||
|
ET or ER to reply to the complainant if necessary |
Contractor to identify
and implement remedial measures in consultation with the IEC, ET and ER. |
||||
|
|
|
|
|
||
|
|
|
The ER, ET
and IEC to review the effectiveness of the Contractor’s remedial measures and
the updated situation; ET to undertake additional monitoring and audit to verify the
situation if necessary and oversee that circumstances leading to the
complaint do not recur. ER to conduct further inspection as necessary.
|
|||
|
|
|
|
|
||
|
If the complaint is referred by the EPD,
the Contractor to prepare interim report on the status of the complaint
investigation and follow-up actions stipulated above, including the details
of the remedial measures and additional monitoring identified or already
taken, for submission to EPD within the timeframe assigned by the EPD |
|||||
|
|
|
|
|||
|
The ET to record the details of the complaint,
results of the investigation, subsequent actions taken to address the
complaint and updated situation including the effectiveness of the remedial
measures, supported by regular and additional monitoring results in the
monthly EM&A reports |
|||||
6.1.2
Should non-compliance of the criteria occur,
action in accordance with the Event and Action Plan in Appendix D and Appendix
E shall be carried out.
6.1.3
No exceedance of the Action and Limit Levels
of air quality (1-hour TSP and 24-hour TSP) monitoring and noise monitoring was
recorded in the reporting period.
6.1.4
No complaint was received in the reporting
period.
6.1.5
No non-compliance was received in the
reporting period.
6.1.6
No notification of summons and successful
prosecution was received in the reporting period.
6.1.7
Statistics on complaints, notifications of
summons and successful prosecutions are summarized in Appendix H.
7.1.1
Site inspections were carried out on a weekly
basis to monitor the implementation of proper environmental pollution control
and mitigation measures under the Contract. In the reporting period, 4 site
inspections were carried out by the representative
of ET, Contractor and Engineer on 4, 11, 18 and
25 July 2025, along with bi-weekly
inspection of the implementation of landscape and visual mitigation measures
conducted on 11 and 25 July 2025.
7.1.2
One joint site inspection with the IEC was
also undertaken on 11 July
2025. Minor deficiencies were observed during
weekly site inspection. Key observations during the site inspections are
summarized in Table 7.1.
Table 7.1 Summary
of Site Observation
|
Date |
Environmental
Observations |
Follow-up
Status |
|
4 July 2025 |
Nil |
Nil |
|
11 July 2025 |
1. A generator was observed without NRMM label, NRMM label should be
displayed on the generator. |
1. The NRMM label was displayed on the generator. (Rectified on 17 July
2025). |
|
18 July 2025 |
1. The general refuse at the sump pit area should be removed |
1. The general refuse at the sump pit area was removed (Rectified on 25
July 2025). |
|
25 July 2025 |
1. Housekeeping should be enhanced, C&D waste should be sorted, and
general refuses should be kept in enclosed waste bin for further disposal. 2. Proper collection of emptied cement bags should be implemented for
dust emission control. 3. Stagnant water should be removed. |
1. The C&D waste was sorted, and general refuses was kept in enclosed
bins (Rectified on 31 July 2025). 2. The emptied cement bags were removed accordingly (Rectified on 31 July
2025). 3. Stagnant water was removed (Rectified on 31 July 2025). |
7.1.3
The Contractor has rectified all observation
identified during environmental site inspection.
7.1.4
According to the EIA Study Report,
Environmental Permit, contract documents and EM&A Manual, the mitigation
measures detailed in the documents had been implemented as much as practical
during the reporting period. An updated Implementation Status of Environmental
Mitigation Measures (EMIS) is provided in Appendix F.
8.1.1
The construction activities to be undertaken
in the next reporting period are listed below:
|
Construction Activities To be Undertaken in
Kai Tak West Area |
|
·
Planter
wall construction at Kai Tak Phase 2B Landscaped Deck ·
Backfilling
works (soil and aggregate) at Kai Tak Phase 2B Landscaped Deck ·
Laying of
planting soil at Kai Tak Phase 2B Landscaped Deck ·
Ramp
construction at Kai Tak Phase 2B Landscaped Deck |
8.1.2
Potential environmental impacts arising from
the above construction activities are mainly associated with dust and waste
management.
8.1.3
The tentative schedule of air quality (1-hour
TSP and 24-hour TSP) monitoring and noise monitoring in the next reporting
period is presented in Appendix F of the corresponding Monthly EM&A Report
for Contract No. HY/2014/07.
8.1.4
The construction programme for the Project
for the next reporting period is presented in Appendix B.
9
Conclusion and
Recommendations
9.1.1
This is the 9th monthly EM&A Report presenting the
EM&A works undertaken in Kai Tak West Area during the period from 1 July 2025 to 31 July 2025 in accordance with the EM&A Manual and
the requirement under EP-457/2013/D.
9.1.2
Air quality monitoring (including 1-hour TSP
and 24-hour TSP) and noise monitoring were carried out in the reporting period
under Contract No. HY/2014/07. No
exceedance of the Action or Limit Level was recorded for air quality monitoring
and noise during the reporting period.
9.1.3
Weekly environmental site inspections by
representatives of the ET, the Contractor and the Engineer were conducted
during the reporting period. One joint site inspection with the IEC was carried
out on 11
July 2025. Minor
deficiencies were observed during site inspection and was rectified within
specified deadlines. The environmental performance of the Project was
therefore considered satisfactory.
9.1.4
No complaint was received in the reporting
period.
9.1.5
No non-compliance situation was received in
the reporting period.
9.1.6
No notification of summons or prosecution was
received since commencement of the Contract.
9.1.7
The ET will keep track on the construction
works to confirm compliance of environmental requirements and the proper
implementation of all necessary mitigation measures.
Appendix A
Alignment and Works Site in
Kai Tak West Area for Contract No. HY/2023/08
Kai Tak Phase 2B
Landscaped Deck

Appendix B
Construction
Programme

Appendix C
Project Organisation Chart
Appendix D
Event and Action Plan (EAP) (Air Quality Monitoring)
|
EVENT |
ACTION |
|||
|
ENVIRONMENTAL TEAM (ET) |
INDEPENDENT
ENVIRONMENTAL CHECKER (IEC) |
ENGINEER’S
REPRESENTATIVE (ER) |
CONTRACTOR |
|
|
ACTION LEVEL |
||||
|
Exceedance for one sample |
1. Identify source,
investigate the causes of exceedance and propose remedial measures; 2. Inform IEC and ER; 3. Repeat measurement to confirm finding; 4. Increase monitoring
frequency to daily. |
1. Check monitoring data submitted by ET; 2. Check Contractor’s working method. |
1. Notify Contractor. |
1. Rectify any unacceptable practice; 2. Amend working methods if
appropriate. |
|
Exceedance for two or
more consecutive samples |
1. Identify source; 2. Inform IEC and ER; 3. Advise the ER on the effectiveness of the proposed remedial measures; 4. Repeat measurements to confirm findings; 5. Increase monitoring
frequency to daily; 6. Discuss with IEC and Contractor on remedial actions required; 7. If exceedance continues, arrange meeting with IEC and ER; 8. If exceedance stops, cease additional monitoring. |
1. Check monitoring data submitted by ET; 2. Check Contractor’s working method; 3. Discuss with ET and Contractor on possible remedial measures; 4. Advise the ET on the effectiveness of the proposed remedial measures; 5. Supervise implementation of remedial measures. |
1. Confirm receipt of notification of failure in writing; 2. Notify Contractor; 3. Ensure remedial measures properly implemented. |
1. Submit proposals for remedial
actions to ER within 3 working days of notification; 2. Implement the agreed proposals; 3. Amend proposal if appropriate. |
|
LIMIT LEVEL |
||||
|
Exceedance for one sample |
1. Identify source,
investigate the causes of exceedance and propose remedial measures; 2. Inform ER, Contractor
and EPD; 3. Repeat measurement to confirm finding; 4. Increase monitoring
frequency to daily; 5. Assess effectiveness of Contractor’s remedial actions and keep
IEC, EPD and ER informed of the results. |
1. Check monitoring data submitted by ET; 2. Check Contractor’s working method; 3. Discuss with ET and Contractor on possible remedial measures; 4. Advise the ER on the effectiveness of the proposed remedial measures; 5. Supervise implementation of remedial measures. |
1. Confirm receipt of notification of failure in writing; 2. Notify Contractor; 3. Ensure remedial measures properly implemented. |
1. Take immediate action to avoid
further exceedance; 2. Submit proposals for remedial
actions to IEC within 3 working days of notification; 3. Implement the agreed proposals; 4. Amend proposal if appropriate. |
|
Exceedance for two or
more consecutive samples |
1. Notify IEC, ER, Contractor and EPD; 2. Identify source; 3. Repeat measurement to confirm findings; 4. Increase monitoring
frequency to daily; 5. Carry out analysis of Contractor’s working procedures to determine
possible mitigation to be implemented; 6. Arrange meeting with IEC and ER to discuss the remedial actions to
be taken; 7. Assess effectiveness of Contractor’s remedial actions and keep
IEC, EPD and ER informed of the results; 8. If exceedance stops,
cease additional monitoring. |
1. Discuss amongst ER, ET, and Contractor on the potential remedial actions; 2. Review Contractor’s remedial actions whenever necessary to assure
their effectiveness and advise the ER accordingly; 3. Supervise the implementation of remedial measures. |
1. Confirm receipt of
notification of failure in writing; 2. Notify Contractor; 3. In consultation with the IEC,
agree with the Contractor on the remedial measures to be implemented; 4. Ensure remedial measures
properly implemented; 5. If exceedance continues,
consider what portion of the work is responsible and instruct the Contractor
to stop that portion of work until the exceedance is abated. |
1. Take immediate action to avoid
further exceedance; 2. Submit proposals for remedial
actions to IEC within 3 working days of notification; 3. Implement the agreed proposals; 4. Resubmit proposals if problem
still not under control; 5. Stop the relevant portion of
works as determined by the ER until the exceedance is abated. |
Appendix E
Event and Action Plan (EAP) (Noise Monitoring)
|
EVENT |
ACTION |
|||
|
ENVIRONMENTAL TEAM (ET) |
INDEPENDENT ENVIRONMENTAL CHECKER (IEC) |
ENGINEER’S REPRESENTATIVE ER |
CONTRACTOR |
|
|
Action Level |
1. Identify source, investigate the causes
of exceedance and propose remedial measures; 2. Notify IEC and Contractor; 3. Report
the results of investigation to the IEC, ER and Contractor; 4. Discuss
with the Contractor and formulate remedial measures; 5. Increase monitoring frequency to check mitigation effectiveness. |
1. Review
the analysed results submitted by the ET; 2. Review
the proposed remedial measures by the Contractor and advise the ER accordingly; 3. Supervise
the implementation of remedial measures. |
1. Confirm
receipt of notification of failure in writing; 2. Notify Contractor; 3. Require Contractor to propose remedial measures for the analysed
noise problem; 4. Ensure remedial measures are properly implemented |
1. Submit
noise mitigation proposals to IEC; 2. Implement noise mitigation proposals. |
Appendix F
Environmental Mitigation
Implementation Schedule (EMIS)
Environmental Mitigation Implementation Schedule
|
EIA Ref. |
EM&A Log Ref. |
Recommended Mitigation
Measures |
Objectives of the
Recommended Measures & Main Concerns to address |
Implementation Agent |
Location / Timing |
Implementation Stage |
Requirements and/ or
standards to be achieved |
Implementation Status |
|
|
Construction Dust Impact |
|||||||||
|
S4.3.10 |
D1 |
The contractor shall follow the procedures and
requirements given in the Air Pollution Control (Construction Dust)
Regulation and Air Pollution Control (Non-road
Mobile Machinery) (Emission) Regulation. |
Minimize dust impact and adverse health effects
at the nearby sensitive receivers |
Contractor |
All construction sites |
Construction stage |
· APCO · To control the dust impact to meet HKAQO and
TM-EIA criteria |
Implemented, rectified after observation for NRMM
label |
|
|
S4.3.10 |
D2 |
· Mitigation measures in form of regular watering
under a good site practice should be adopted.
Watering once per hour on exposed worksites and haul road should be
conducted to achieve dust removal efficiencies of 91.7%. While the above
watering frequencies are to be followed, the extent of watering may vary
depending on actual site conditions but should be sufficient to maintain an
equivalent intensity of no less than 1.3 L/m2 to achieve the dust
removal efficiency. |
Minimize dust impact at the nearby sensitive
receivers |
Contractor |
All construction sites |
Construction stage |
· APCO · To control the dust impact to meet HKAQO and
TM-EIA criteria |
Implemented. |
|
|
S4.3.10 |
D3 |
· Proper watering at exposed spoil should be
undertaken throughout the construction phase; · Any excavated or stockpile of dusty material
should be covered entirely by impervious sheeting or sprayed with water to
maintain the entire surface wet and then removed or backfilled or reinstated
where practicable within 24 hours of the excavation or unloading; · Any dusty materials remaining after a stockpile
is removed should be wetted with water and cleared from the surface of roads; · A stockpile of dusty material should not be
extended beyond the pedestrian barriers, fencing or traffic cones; · The load of dusty materials on a vehicle leaving
a construction site should be covered entirely by impervious sheeting to
ensure that the dusty materials do not leak from the vehicle. · Where practicable, vehicle washing facilities
with high pressure water jet should be provided at every discernible or
designated vehicle exit point. The
area where vehicle washing takes place and the road section between the
washing facilities and the exit point should be paved with concrete,
bituminous materials or hardcores; · When there are open excavation and reinstatement
works, hoarding of not less than 2.4m high should be provided and properly
maintained as far as practicable along the site boundary with provision for
public crossing. Good site practice
shall also be adopted by the Contractor to ensure the conditions of the
hoardings are properly maintained throughout the construction period; · The portion of any road leading only to
construction site that is within 30m of a vehicle entrance or exit should be
kept clear of dusty materials; · Surfaces where any pneumatic or power-driven
drilling, cutting, polishing or other mechanical breaking operation takes
place should be sprayed with water or a dust suppression chemical continuously; · Any area that involves demolition activities
should be sprayed with water or a dust suppression chemical immediately prior
to, during and immediately after the activities so as to
maintain the entire surface wet; · Any skip hoist for material transport should be
totally enclosed by impervious sheeting; · Every stock of more than 20 bags of cement or
dry-pulverised fuel ash (PFA) should be covered entirely by impervious
sheeting or placed in an area sheltered on the top and the 3 sides; · Loading, unloading, transfer, handling or storage
of bulk cement or dry PFA should be carried out in a totally enclosed system
or facility, and any vent or exhaust should be fitted with an effective
fabric filter or equivalent air pollution control system · Exposed earth should be properly treated by
compaction, turfing, hydroseeding, vegetation planting or sealing with latex,
vinyl, bitumen, shotcrete or other suitable surface stabilizer within six
months after the last construction activity on the construction site or part
of the construction site where the exposed earth lies. |
Minimize dust impact at the nearby sensitive
receivers |
Contractor |
All construction sites |
Construction stage |
· APCO · To control the dust impact to meet HKAQO and
TM-EIA criteria |
Implemented for the 1st to 4th
bullet. N/A for
other bullets. |
|
|
S4.3.10 |
D6 |
Implement regular dust monitoring under EM&A
programme during the construction stage. |
Monitoring of dust impact |
Contractor |
Selected rep. dust monitoring station |
Construction stage |
· TM-EIA |
Implemented |
|
|
Construction Noise
(Airborne) |
|||||||||
|
S5.4.1 |
N1 |
Implement the following good site practices: · Only well-maintained plant should be operated
on-site, and plant should be serviced regularly during the construction programme; · Machines and plant (such as trucks, cranes) that
may be in intermittent use should be shut down between work periods or should
be throttled down to a minimum; · Plant known to emit noise strongly in one
direction, where possible, be orientated so that the noise is directed away
from nearby NSRs; · Silencers or mufflers on construction equipment
should be properly fitted and maintained during the construction works; · Mobile plant should be sited as far away from
NSRs as possible and practicable; · Material stockpiles, mobile container site office
and other structures should be effectively utilized, where practicable, to
screen noise from on-site construction activities. |
Control construction airborne noise |
Contractor |
All construction sites |
Construction stage |
· Annex 5, TM-EIAO |
Implemented for the 1st, 2nd,
5th bullets, N/A for other bullets |
|
|
S5.4.1 |
N2 |
Install temporary hoarding located on the site
boundaries between noisy construction activities and NSRs. The conditions of hoardings shall be
properly maintained throughout the construction period. |
Reduce the construction noise levels at low-level
zone of NSRs through partial screening |
Contractor |
All construction sites |
Construction stage |
· Annex 5, TM-EIAO |
N/A |
|
|
S5.4.1 |
N3 |
Install movable noise barriers (typical design is
wooden framed barrier with a small-cantilevered on a skid footing with 25mm
thick internal sound absorptive lining), acoustic mat or full enclosure,
screen the noisy plants including air compressors, generators and handheld
breakers, etc. |
Screen the noisy plant items to be used at all
construction sites |
Contractor |
All construction sites where practicable |
Construction stage |
· Annex 5, TM-EIAO |
N/A |
|
|
S5.4.1 |
N4 |
Use ‘Quiet plant’ |
Reduce the noise levels of plant items |
Contractor |
All construction sites where practicable |
Construction stage |
· Annex 5, TM-EIAO |
Implemented |
|
|
S5.4.1 |
N5 |
Loading/ unloading activities should be carried
out inside the full enclosure of mucking out points. |
Reduce the noise levels of loading/ unloading
activities |
Contractor |
Mucking out locations |
Construction stage |
· Annex 5, TM-EIAO |
N/A |
|
|
S5.4.1 |
N6 |
Sequencing operation of construction plants where
practicable. |
Operate sequentially within the same work site to
reduce the construction airborne noise |
Contractor |
All construction sites where practicable |
Construction stage |
· Annex 5, TM-EIAO |
N/A |
|
|
S5.4.1 |
N7 |
Implement a noise monitoring programme under
EM&A programme. |
Monitor the construction noise levels at the
selected representative locations |
Contractor |
Selected rep. noise monitoring station |
Construction stage |
· TM-EIAO |
Implemented |
|
|
Water Quality
(Construction Phase) |
|||||||||
|
S6.9.1.1 |
W1 |
In accordance with the Practice Note for
Professional Persons on Construction Site Drainage, Environmental Protection
Department, 2023 (ProPECC PN 2/23), construction
phase mitigation measures shall include the following: Construction Runoff · At the start of site establishment, perimeter
cut-off drains to direct off-site water around the site should be constructed
with internal drainage works and erosion and sedimentation control facilities
implemented. Channels (both temporary
and permanent drainage pipes and culverts), earth bunds or sandbag barriers
should be provided on site to direct stormwater to silt removal
facilities. The design of the
temporary on-site drainage system will be undertaken by the contractor prior
to the commencement of construction; · The dikes or embankments for flood protection
should be implemented around the boundaries of earthwork areas. Temporary ditches should be provided to
facilitate the runoff discharge into an appropriate watercourse, through a
silt/ sediment trap. The sediment/
silt traps should be incorporated in the permanent drainage channels to
enhance deposition rates; · The design of efficient silt removal facilities
should be based on the guidelines in Appendix A1 of ProPECC
PN 2/23, which states that the retention time for silt/ sand traps should be
5 minutes under maximum flow conditions.
Sizes may vary depending upon the flow rate, but for a flow rate of
0.1 m3/s a sedimentation basin of 30 m3 would be
required and for a flow rate of 0.5 m3/s the basin would be 150 m3. The detailed design of the sand/ silt traps
shall be undertaken by the contractor prior to the commencement of construction; · All exposed earth areas should be completed and
vegetated as soon as possible after earthworks have been completed, or
alternatively, within 14 days of the cessation of earthworks where
practicable. Exposed slope surfaces
should be covered by tarpaulin or other means; · The overall slope of the site should be kept to a
minimum to reduce the erosive potential of surface water flows, and all
traffic areas and access roads protected by coarse stone ballast. An additional advantage accruing from the
use of crushed stone is the positive traction gained during prolonged periods
of inclement weather and the reduction of surface sheet flows; · All drainage facilities and erosion and sediment
control structures should be regularly inspected and maintained to ensure proper and efficient operation at all times and
particularly following rainstorms.
Deposited silt and grit should be removed regularly and disposed of by
spreading evenly over stable, vegetated areas; · Measures should be taken to minimize the ingress
of site drainage into excavations. If
the excavation of trenches in wet periods is necessary, they should be dug
and backfilled in short sections wherever practicable. Water pumped out from trenches or
foundation excavations should be discharged into storm drains via silt
removal facilities; · Open stockpiles of construction materials (for
example, aggregates, sand and fill material) of more than 50m3
should be covered with tarpaulin or similar fabric during rainstorms. Measures should be taken to prevent the
washing away of construction materials, soil, silt or debris into any
drainage system; · Manholes should always be adequately covered and
temporarily sealed so as to prevent silt,
construction materials or debris being washed into the drainage system and
storm runoff being directed into foul sewers; · Precautions be taken at any time of year when
rainstorms are likely, actions to be taken when a rainstorm is imminent or
forecasted, and actions to be taken during or after rainstorms are summarized
in Appendix A2 of ProPECC PN 2/23. Particular attention should be paid to the
control of silty surface runoff during storm events, especially for areas
located near steep slopes; · All vehicles and plant should be cleaned before
leaving a construction site to ensure no earth, mud, debris and the like is
deposited by them on roads. An
adequately designed and site wheel washing facilities should be provided at
every construction site exit where practicable. Wash-water should have sand and silt
settled out and removed at least on a weekly basis to ensure the continued
efficiency of the process. The section
of access road leading to, and exiting from, the wheel wash bay to the public
road should be paved with sufficient backfall toward the wheel wash bay to
prevent vehicle tracking of soil and silty water to public roads and drains; · Oil interceptors should be provided in the
drainage system downstream of any oil/ fuel pollution sources. The oil interceptors should be emptied and
cleaned regularly to prevent the release of oil and grease into the storm
water drainage system after accidental spillage. A bypass should be provided for the oil
interceptors to prevent flushing during heavy rain; · Construction solid waste, debris and rubbish on
site should be collected, handled and disposed of properly to avoid water
quality impacts; · All fuel tanks and storage areas should be
provided with locks and sited on sealed areas, within bunds of a capacity
equal to 110% of the storage capacity of the largest tank to prevent spilled
fuel oils from reaching water sensitive receivers nearby; · Adopt best management practices; · All earth works should be conducted sequentially
to limit the amount of construction runoff generated from exposed areas
during the wet season (April to September) as far as practicable. |
To minimize water quality impact from the
construction site runoff and general construction activities |
Contractor |
All construction sites where practicable |
Construction stage |
· Water Pollution Control Ordinance · ProPECC PN 2/23 · TM-EIAO · TM-DSS |
Implemented for the 1st, 3rd,
6th to 10th, 13th, 16th to 17th
bullets N/A for other bullets |
|
|
S6.9.1.2 |
W2 |
Tunnelling Works and Underground
Works · Cut-&-cover tunnelling work should be conducted sequentially to
limit the amount of construction runoff generated
from exposed
areas during the wet season (April to September)
as far as
practicable. · Uncontaminated discharge should pass through
sedimentation tanks prior to off-site discharge; · The wastewater with a high concentration of SS
should be treated (e.g. by sedimentation tanks with sufficient retention
time) before discharge. Oil
interceptors would also be required to remove oil, lubricants and grease from
the wastewater; · Direct discharge of the bentonite slurry (as a result of D-wall) is not allowed. It should be reconditioned and reused
wherever practicable. Temporary
storage locations (typically a properly closed warehouse) should be provided
on site for any unused bentonite that needs to be transported away after all
the related construction activities area completed. The requirements in ProPECC
PN 2/23 should be adhered to in the handling and disposal of bentonite
slurries. |
To minimize construction water quality impact
from tunnelling works |
Contractor |
All tunnelling portion |
Construction stage |
· Water Pollution Control Ordinance · ProPECC PN 2/23 · TM-DSS · TM-EIAO |
N/A |
|
|
S6.9.1.3 |
W3 |
Sewage Effluent · Portable chemical toilets and sewage holding
tanks are recommended for handling the construction sewage generated by the
workforce. A licensed contractor
should be employed to provide appropriate and adequate portable toilets and
be responsible for appropriate disposal and maintenance. |
To minimize water quality from sewage effluent |
Contractor |
All construction sites where practicable |
Construction stage |
· Water Pollution Control Ordinance · TM-DSS |
Implemented |
|
|
S6.9.1.5 |
W4 |
Groundwater from Potential Contaminated Area: · No direct discharge of groundwater from
contaminated areas should be
adopted. · A discharge license under the WPCO through the
Regional
Office of EPD for groundwater discharge should be
applied. Prior to the
excavation works within these potentially contaminated
areas, the groundwater quality should be reviewed
during the
process of discharge license application. The
compliance to the Technical
Memorandum on Standards for Effluents Discharged into Drainage on Sewerage Systems, Inland and
Coastal Waters (TM-DSS) and the existence of prohibited substance should be
confirmed. If the review results indicated that
the groundwater to be generated
from the excavation works would be contaminated, the contaminated groundwater should be either
properly treated in compliance
with the requirements of the TM-DSS or properly recharged into the ground. · If wastewater treatment is deployed, the
wastewater treatment unit shall deploy suitable treatment process (e.g. oil interceptor /
activated carbon) to reduce the pollution level
to an acceptable standard and
remove any prohibited substances (e.g. TPH) to undetectable range. All treated effluent from
wastewater
treatment plant shall meet the requirements as
stated in TM-DSS and should be
discharged into the foul sewers. · If groundwater recharging wells are deployed,
recharging wells should be
installed as appropriate for recharging the contaminated groundwater back into the ground.
The recharging wells should
be selected at places where the groundwater quality will not be affected by the recharge operation as
indicated in the Section 2.3
of TM-DSS. The baseline groundwater quality shall be determined prior to the selection of the
recharge wells, and submit a working plan (including the laboratory
analytical results showing the quality of groundwater at the proposed
recharge location(s) as well as the pollutant levels of groundwater to be
recharged) to EPD for agreement. Pollution levels of groundwater to be
recharged shall not be higher than pollutant levels of ambient groundwater at
the recharge well. Prior to recharge, any prohibited substances such as TPH
products should be removed as necessary by installing the petrol interceptor. |
To minimize groundwater quality impact from
contaminated area |
Contractor |
Excavation areas where contamination is found |
Construction stage |
· Water Pollution Control Ordinance · TM-DSS · TM-EIAO |
N/A |
|
|
S6.9.1.6 |
W6 |
Accidental Spillage In order to prevent accidental spillage of chemicals, the
following is recommended: · All the tanks, containers, storage area should be
bunded and the locations should be locked as far as possible from the
sensitive watercourse and stormwater drains; · The Contractor should register as a chemical
waste producer if chemical wastes would be generated. Storage of chemical waste arising from the
construction activities should be stored with suitable labels and warnings. Disposal of chemical wastes should be conducted
in compliance with the requirements as stated in the Waste Disposal (Chemical
Waste) (General) Regulation. |
To minimize water quality impact from accidental
spillage |
Contractor |
All construction site where practicable |
Construction stage |
· Water Pollution Control Ordinance · ProPECC PN 2/23 · TM-EIAO · TM-DSS |
Implemented. |
|
|
Waste
Management (Construction Waste) |
|||||||||
|
S7.4.1 |
WM1 |
On-site sorting of C&D material · Geological assessment should be carried out by
competent persons on site during excavation to identify materials which are
not suitable to use as aggregate in structural concrete (e.g. volcanic rock,
Aplite dyke rock, etc.). Volcanic rock
and Aplite dyke rock should be separated at the source sites as far as
practicable and stored at designated stockpile area preventing them from
delivering to crushing facilities. The
crushing plant operator should also be reminded to set up measures to prevent
unsuitable rock from ending up at concrete batching plants and be turned into
concrete for structural use. Details
regarding control measures at source site and crushing facilities should be
submitted by the Contractor for the Engineer to review and agree. In addition, site records should also be
kept for the types of rock materials excavated and the traceability of
delivery will be ensured with the implementation of Trip Ticket System and
enforced by site supervisory staff as stipulated under DEVB TC(W) No. 6/2010
for tracking of the correct delivery to the rock crushing facilities for
processing into aggregates.
Alternative disposal option for the reuse of volcanic rock and Aplite
Dyke rock, etc. should be explored. |
Separation of unsuitable rock from ending up at
concrete batching plants and be turned into concrete for structural use |
Contractor |
All construction sites |
Construction stage |
· DEVB (W) No. 6/2010 |
N/A |
|
|
S7.5.1 |
WM2 |
Construction and Demolition Material · Maintain temporary stockpiles and reuse excavated
fill material for backfilling and reinstatement; · Carry out on-site sorting; · Make provisions in the Contract documents to
allow and promote the use of recycled aggregates where appropriate; · Adopt ‘selective demolition’ technique to
demolish the existing structures and facilities with a view to recovering
broken concrete effectively for recycling purpose, where possible; · Implement a trip-ticket system for each works
contract to ensure that the disposal of C&D materials is properly
documented and verified; and · Implement an enhanced Waste Management Plan similar to ETWBTC (Works) No. 19/2005 – “Environmental
Management on Construction Sites” to encourage on-site sorting of C&D
materials and to minimize their generation during the
course of construction. |
Good site practice to minimize the waste
generation and recycle the C&D materials as far as practicable so as to reduce the amount for final disposal |
Contractor |
All construction sites |
Construction stage |
· Land (Miscellaneous Provisions) Ordinance · Waste Disposal Ordinance · ETWB TCW No. 19/2005 |
Implemented, rectified after observation for the
2nd bullet. Implemented for the 1st, 5th,
6th bullets N/A for other bullets |
|
|
S7.5.1 |
WM3 |
C&D Waste · Standard formwork or pre-fabrication should be
used as far as practicable in order to minimize the
arising of C&D materials. The use
of more durable formwork or plastic facing for the construction works should
be considered. Use of wooden hoardings
should not be used, as in other projects.
Metal hoarding should be used to enhance the possibility of
recycling. The purchasing of
construction materials will be carefully planned in order
to avoid over ordering and wastage; · The Contractor should recycle as much of the
C&D materials as possible on-site. Public fill and C&D waste should
be segregated and stored in different containers or skips to enhance reuse or
recycling of materials and their proper disposal. Where practicable, concrete and masonry can
be crushed and used as fill. Steel
reinforcement bar can be used by scrap steel mills. Different areas of the sites should be
considered for such segregation and storage. |
Good site practice to minimize the waste
generation and recycle the C&D materials as far as practicable so as to reduce the amount for final disposal |
Contractor |
All construction sites |
Construction stage |
· Land (Miscellaneous Provisions) Ordinance · Waste Disposal Ordinance · ETWB TCW No. 19/2005 |
N/A |
|
|
S7.5.1 |
WM4 |
Excavated Contaminated Soils · Details of the mitigation measures on handling of
the contaminated soil shall be referred to Section on Land Contamination
below. |
The contaminated soil will be excavated for on-site reuse |
Contractor |
PBH4 |
Prior to commencement of construction works within the contaminated area |
· Practice Guide (PG) for Investigation and
Remediation of Contaminated Land · GN/GM for land contamination |
N/A |
|
|
S7.5.1 |
WM5 |
Land-based Sediment · All construction plant and equipment shall be
designed and
maintained to minimize the risk of silt,
sediments, contaminants or other pollutants being released into the water column or
deposited in the locations other than designated location; · All vessels shall be sized such that adequate
draft is maintained between
vessels and the sea bed at all states of the tide to
ensure that undue turbidity is not generated by
turbulence from vessel
movement or propeller wash; · Before moving the vessels
which are used for transporting dredged material, excess material shall be cleaned from the
decks and exposed fittings of vessels and the
excess materials shall never
be dumped into the sea except at the approved locations; · Adequate freeboard shall be maintained on barges
to ensure that decks are not
washed by wave action. · The Contractors shall monitor all vessels
transporting material to ensure that no dumping outside the approved location takes
place. The Contractor shall keep and produce logs
and other
records to demonstrate compliance and that
journeys are
consistent with designated locations and copies
of such records shall be
submitted to the engineers; · The Contractors shall comply with the conditions
in the dumping license. · All bottom dumping vessels (Hopper barges) shall
be fitted with tight
fittings seals to their bottom openings to prevent leakage of
material; · The material shall be placed into the disposal
pit by bottom
dumping; · Contaminated marine mud shall be transported by
spit barge of
not less than 750m3 capacity and
capable of rapid opening and discharge at the disposal site; · Discharge shall be undertaken rapidly, and the
hoppers shall be closed
immediately. Material adhering to the sides of the hopper
shall not be washed out of the hopper and the
hopper shall
remain closed until the barge returns to the
disposal site. · For Type 3 special disposal treatment, sealing of
contaminant
with geosynthetic containment before dropping
designated
mud pit would be a possible arrangement. A
geosynthetic
containment method is a method whereby the
sediments are
sealed in geosynthetic containers and, the
containers would be dropped into
the designated contaminated mud pit where they would be covered by further mud disposal and
later by the mud pit capping
at the disposal site, thereby fulfilling the requirements
for fully confined mud disposal. |
To control pollution due to marine sediment |
Contractor |
Along CKR alignment |
Construction stage |
· ETWB TCW No. 34/2002 |
N/A |
|
|
S7.5.1 |
WM6 |
Chemical Waste · Chemical waste that is produced, as defined by
Schedule 1 of the Waste Disposal (Chemical Waste) (General) Regulation,
should be handled in accordance with the Code of Practice on the Packaging,
Labelling and Storage of Chemical Wastes; · Containers used for the storage of chemical
wastes should be suitable for the substance they are holding, resistant to
corrosion, maintained in a good condition, and securely closed, have a
capacity of less than 450 L unless the specification has been approved by
EPD, and display a label in English and Chinese in accordance with
instructions prescribed in Schedule 2 of the regulation; · The storage area for chemical wastes should be
clearly labelled and used solely for the storage of chemical waste, enclosed
on at least 3 sides, have an impermeable floor and bunding of sufficient
capacity to accommodate 110% of the volume of the largest container or 20% of
the total volume of waste stored in that area, whichever is the greatest,
have adequate ventilation, covered to prevent rainfall entering, and arranged
so that incompatible materials are adequately separated; · Disposal of chemical waste should be via a
licensed waste collector, be to a facility licensed to receive chemical
waste, such as the Chemical Waste Treatment Centre which also offers a
chemical waste collection service and can supply the necessary storage
containers, or be to a reuser of the waste, under
approval from EPD. |
Control the chemical waste and ensure proper
storage, handling and disposal |
Contractor |
All construction sites |
Construction stage |
· Waste Disposal (Chemical Waste) (General)
Regulation · Code of Practice on the Packaging, Labelling and
Storage of Chemical Waste |
Implemented for the 2nd and 3rd
bullet. N/A for other bullet. |
|
|
S7.5.1 |
WM7 |
General Refuse · General refuse generated on-site should be stored
in enclosed bins or compaction units separately from construction and
chemical wastes; · A reputable waste collector should be employed by
the Contractor to remove general refuse from the site, separately from
construction and chemical wastes, on a daily basis
to minimize odour, pest and litter impacts.
Burning of refuse on construction sites is prohibited by law. · Aluminium cans are often recovered from the waste
stream by individual collectors if they are segregated and made easily
accessible. Separate labelled bins for
their deposit should be provided if feasible; · Office wastes can be reduced through the
recycling of paper if volumes are large enough to warrant collection. Participation in a local collection scheme
should be considered by the Contractor. |
Minimize production of the general refuse and
avoid odour, pest and litter impacts |
Contractor |
All construction sites |
Construction stage |
· Waste Disposal Ordinance |
Implemented, rectified after observation for the
1st bullet. Implemented for other bullets. |
|
|
Hazard to
Life |
|||||||||
|
H8 |
The driver
and his assistant should be physically healthy, experienced and have good
safe driving records. The driver
should hold a proper driving licence for the approved transport truck. Dedicated training programme and regular
road safety briefing sessions/ workshops should be provided to enhance their
safe driving attitude and practice.
Smoking should be strictly prohibited. |
To reduce the risk during explosives transport |
Contractor |
Works areas at which explosives would be used |
Construction stage |
- |
N/A |
||
|
S9.18 |
H9 |
Emergency response plans in case of road accident
should be prepared and implemented.
The driver and his assistant should be familiar with the emergency
procedures including evacuation, and proper communication/ fire-fighting
equipment should be provided to the driver and his assistant. |
To reduce the risk during explosives transport |
Contractor |
Works areas at which explosives would be used |
Construction stage |
- |
N/A |
|
|
Landscape & Visual |
|||||||||
|
S10.10.1 Table 10.11 |
LV3 |
Good Site Management · Large temporary stockpiles of excavated material
shall be covered with unobtrusive sheeting to prevent dust and dirt spreading
to adjacent landscape areas and vegetation, and to create a neat and tidy
visual appearance. · Construction plant and building material shall be
orderly and carefully stored in order to create a
neat and tidy visual appearance. |
Minimize visual impact |
Contractor |
Within Project site |
Construction stage |
- |
Implemented for the 2nd bullet N/A for another bullet |
|
|
LV4 |
Screen Hoarding ·
Decorative
screen hoarding should be erected to screen the public from the construction
area. It should be designed to be
compatible with the existing urban context. |
Minimize visual impact |
Contractor |
Within Project site |
Construction stage |
- |
N/A |
||
|
S10.10.1 Table 10.11 |
LV5 |
Lighting Control during Construction · All lighting in the construction site shall be
carefully controlled to minimize light pollution and night-time glare to
nearby residencies and GIC. The
Contractor shall consider other security measures, which shall minimize the
visual impacts. |
Minimize visual impact |
Contractor |
Within Project site |
Construction stage |
- |
N/A |
|
|
S10.10.1 Table 10.11 |
LV6 |
Erosion Control · The potential for soil erosion shall be reduced
by minimizing the extent of vegetation disturbance on site and by providing a
protective cover over newly exposed soil. |
Minimize
landscape impact |
Contractor |
Within
Project site |
Construction
stage |
- |
N/A |
|
|
S10.10.1 Table 10.11 |
LV7 |
Tree Protection & Preservation · Carefully protected during construction. Tree protection measures will be detailed
at the Tree Removal Application stage and plans submitted to the relevant
Government Department for approval in due course in accordance with ETWB TC
No. 3/2006. |
Minimize
landscape and visual impact |
Contractor |
Within
Project site |
Construction
stage |
· ‘Guidelines for Tree Risk Management and
Assessment Arrangement on an Area Basis and on a Tree Basis’, Greening,
Landscape and Tree Management (GLTM) Section, DEVB · Latest recommended horticultural practices from
GLTM Section, DEVB |
N/A |
|
|
S10.10.1 Table 10.11 |
LV8 |
Tree Transplantation · For trees unavoidably affected by the Project
that have to be removed, where practical
transplantation will be chosen as the top priority method of removal. If this is not possible or practical
compensatory planting will be provided for trees unavoidably felled (See
LV10). For trees unavoidably affected
by the Project works that are transplanted, transplantation must be carried
out in accordance with ETWB TCW 2/2004 and 3/2006. |
Minimize
landscape and visual impact |
Contractor |
Within
Project site and designated off-site locations |
Prior to
Construction stage |
· ETWB TCW 3/2006 · Latest recommended horticultural practices from
Greening, Landscape and Tree Management (GLTM) Section, DEVB · ETWB TCW 2/2004 |
N/A |
|
|
S10.10.1 Table 10.11 |
LV9 |
Compensatory Planting · For trees unavoidably affected by the Project
that have to be removed, where practical
transportation will be chosen as the top priority method of removal but if
this is not possible or practical compensatory planting will be provided for
trees unavoidably felled. All felled
trees shall be compensated for by planting trees to the satisfaction of
relevant Government projects. Required
numbers and locations of compensatory trees shall be determined and agreed
separately with Government during the Tree Felling Application process under
ETWB TC 3/2006. · Compensatory tree planting may be incorporated
into public open spaces and along roadside amenity areas affected by the
construction works and therefore be part of the bigger wider planting
plans. Onsite compensation planting is
preferred but, if necessary, additional receptor sites outside the Works Area
shall be agreed separately with the Government during the Tree Felling
Application process. |
Minimize
visual impact and also enhance landscape |
Contractor |
Within
Project site |
Construction
stage |
· ETWB TCW 3/2006 · Latest recommended horticultural practices from
Greening, Landscape and Tree Management (GLTM) Section, DEVB · ETWB TCW 2/2004 |
N/A |
|
|
S10.10.1 Table 10.11 |
LV10 |
Screen Planting · Tall screen/buffer trees, shrubs and climbers
should be planted, in so far as is possible, to soften and screen proposed
structures such as roads and central strip, vertical edges and buildings and
to enhance streetscape greening effect where appropriate. Indiscriminate use
of trees for screening must be avoided and the principle of ‘right tree for
the right place’ must be followed. This detail will be provided at the
Detailed Design stage. This measure may additionally form part of the
compensatory planting and will improve and create a pleasant pedestrian
environment. |
Minimize
visual impact and also enhance
landscape. |
Contractor |
Within Project Site |
Construction Phase |
· Guidelines on Greening of Noise Barriers, issued
April 2012, GLTMS, DevB · ETWB TCW 2/2004 |
N/A |
|
|
S10.10.1 Table 10.11 |
LV12 |
Reinstatement · All works areas, excavated areas and disturbed
areas for tunnel construction and temporary road diversion or any other
proposed works shall be reinstated to former conditions or better, with
reasonable landscape treatment and to the satisfaction of the relevant
Government departments. (Specific mitigation for disturbance to public open
space is detailed separately under LV14.) |
Minimize landscape impact |
Contractor |
Within Project Site |
Construction Phase |
· N/A |
N/A |
|
|
Cultural Heritage Impact (Construction Phase) |
|||||||||
|
S11.4.4 |
CH1 |
The contractor should be alerted during the
construction on the possibility of locating archaeological remains and as a
precautionary measure, AMO shall be informed immediately in case of discovery
of antiquities or supposed antiquities in the subject sites. |
To preserve any cultural heritage items which may
be removed and damaged by the excavation |
Contractor |
During construction works for cut and cover
tunnels |
Construction stage |
· AMOs requirements |
N/A |
|
|
EM&A Project |
|||||||||
|
S13.2 |
EM1 |
An Independent Environmental Checker needs to be
employed as per the EM&A Manual |
Control EM&A Performance |
Highways Department |
All construction sites |
Construction stage |
· EIAO Guidance Note No. 4/2010 · TM-EIAO |
Implemented |
|
|
S13.2-13.4 |
EM2 |
· An Environmental Team needs to be employed as per
the EM&A Manual; · Prepare a systematic Environmental Management
Plan to ensure effective implementation of the mitigation measures; · An environmental impact monitoring needs to be
implemented by the Environmental Team to ensure all the requirements given in
the EM&A Manual are fully complied with. |
Perform environmental monitoring & auditing |
Highways Department/ Contractor |
All construction sites |
Construction stage |
· EIAO Guidance Note No. 4/2010 · TM-EIAO |
Implemented |
|
Appendix G
Waste Flow Table

Appendix H
Statistics on
Complaint, Notifications of Summons and Successful Prosecution
Statistical
Summary of Environmental Complaints
|
Reporting
Period |
Environmental
Complaint Statistics |
||
|
Frequency |
Cumulative |
Complaint
Nature |
|
|
1 July 2025 - 31 July 2025 |
0 |
0 |
N/A |
Statistical
Summary of Environmental Non-compliance
|
Reporting
Period |
Environmental
Non-compliance Statistics |
||
|
Frequency |
Cumulative |
Details |
|
|
1 July 2025 - 31 July 2025 |
0 |
0 |
N/A |
Statistical
Summary of Environmental Summons
|
Reporting
Period |
Environmental
Summons Statistics |
||
|
Frequency |
Cumulative |
Details |
|
|
1 July 2025 - 31 July 2025 |
0 |
0 |
N/A |
Statistical
Summary of Environmental Prosecution
|
Reporting
Period |
Environmental
Prosecution Statistics |
||
|
Frequency |
Cumulative |
Details |
|
|
1 July 2025 - 31 July 2025 |
0 |
0 |
N/A |
